White reversible SMC base
SMC walls with Grey Marble pattern
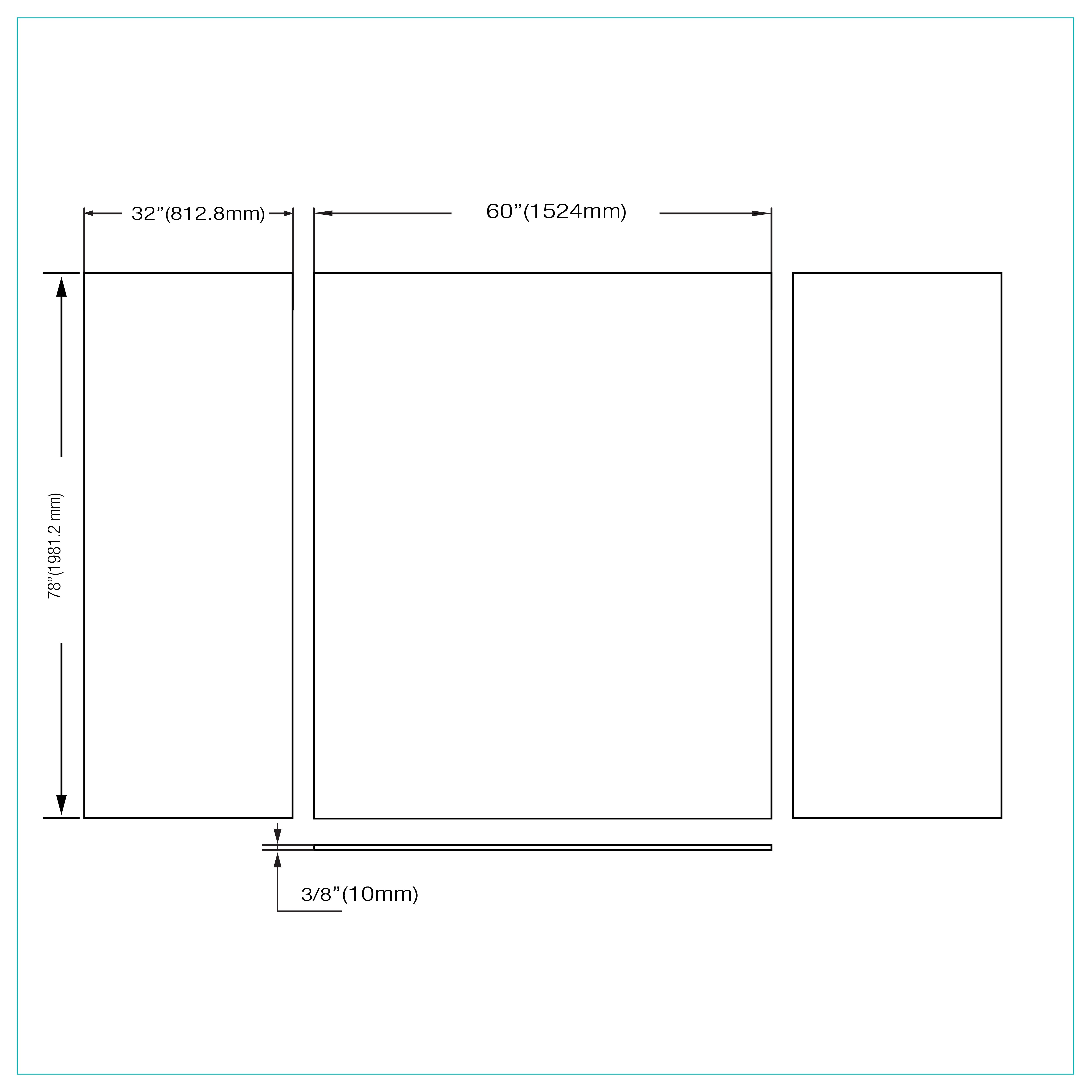
8mm clear tempered glass with sliding door
Sliding door with decorative rollers
Chrome or matte black aluminium profile
CUPC certified
Stainless steel handle
Valerie Black with Grey Marble Walls














