High gloss pure acrylic construction
Base and walls reinforced with fiberglass
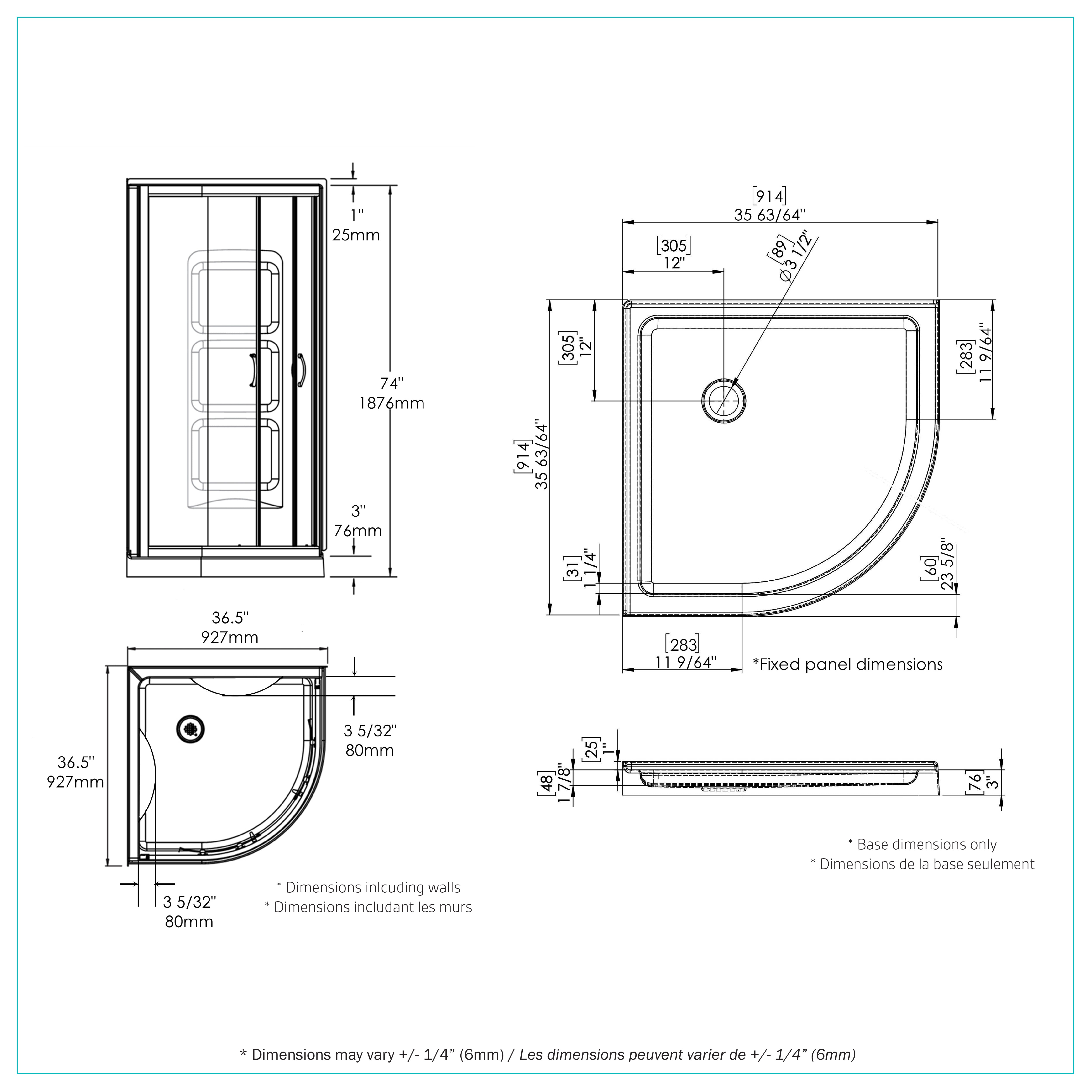
3” (7.6cm) low threshold base for easy access
Anti-slip textured base
Frameless sliding doors, central opening
5mm clear tempered glass panels
Black finish profiles and accessories
Integrated shelving system
Drain included
| 36" | 36x36x74" |
| 38" | 38x38x74" |
| 40" | 40x40x74" |
Marshall Black











